




USD1,850,000
Casa Unifamiliar en Venta, 154 Porto Vecchio Way, MIRASOL, Palm Beach Gardens, Florida 33418, Estados Unidos
- Nº De MLSRX-11132763
- 3
- 3
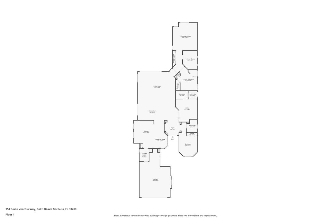
245 m² (2,639 ft²)
Listado por Mirasol Realty
La Casa Unifamiliar en Venta ubicada en 154 Porto Vecchio Way, MIRASOL, Palm Beach Gardens, Florida 33418, Estados Unidos actualmente está en venta154 Porto Vecchio Way, MIRASOL, Palm Beach Gardens, Florida 33418, Estados Unidos está listado paraUSD1,850,000.Esta propiedad tiene 3 dormitorios, 3 baños características.
Características de la propiedad
Propiedad
- Área de la propiedad:
245 m² (2,639 ft²) - Tipo: Sin Amoblar
- Características: Patio Abierto
- Ubicación: En La CostaSubdivisiónDesarrollo
Lote/Terreno
- Área del terreno/predio:
1,103 m² (11,868 ft²) - Descripción del lote: Cercado
Construcción
- Año de construcción: 2003
- Techumbre: Teja Plana
- Estado de la propiedad: Reventa
- Construcción: Construcción De Bloques De Hormigón Y Estuco
Estacionamiento/Garaje
- Descripción del garaje: Puerta De Garaje De Apertura Automática
Dormitorios
- Dormitorios: 3
Cuartos de baño
- Total de baños: 3
- Baños completos: 3
Otras habitaciones
- Tipos de habitaciones:
- Descripción de la cocina: Despensa
- Equipamiento: LavadoraCocina EconómicaMicroondasHeladeraTrituradora De BasuraSecadoraLavavajillaPileta Para Lavar La Ropa
Características interiores
- Pisos: De BaldosasRevestimiento
Características exteriores
- Espacios exteriores: Patio Abierto
- Entrada de coches: Entrada Para Autos - Circular
- Cocheras techadas:
Alberca y spa
- Piscina: Piscina PrivadaA Nivel Del Suelo
Agua y acceso para lanchas
- Agua: Lago
Seguridad
- Características: Patrulla De SeguridadPostigos Para VentanaDetector De HumoSistema De Alarma - Poseído
Calefacción y aire acondicionado
- Sistema de calefacción: Central
- Servicio de agua caliente: Calentador De Agua A Gas
- Sistema de refrigeración: Central
Servicios públicos
- Otros servicios: AguaCableado De TV Por Cable InstaladoGas Natural EléctricaAlcantarilla Pública
Comunidad
- Características: Club HouseSe Admiten MascotasBarrio Privado Con GuardiaGreen De GolfBarrio Privado Cerrado Con Pórtico
Descripción
Welcome to 154 Porto Vecchio, Palm Beach Gardens Nestled in the prestigious Country Club at Mirasol, this charming three-bedroom, three-bath home is a true gem. Boasting a brand-new roof and newly installed accordion shutters, this home is not only aesthetically pleasing but also offers significant insurance benefits. The home features a serene and private lot with beautiful lake views and a private preserve at the back, creating a peaceful retreat. The great room-style floor plan, known as the Bardini, showcases light and bright transitional decor. The kitchen, with its warm maple cabinetry, offers stunning views of the lake and the Sunrise golf course.
Ubicación
154 Porto Vecchio Way, MIRASOL, Palm Beach Gardens, Florida 33418, Estados Unidos