




$4,125,000 USD
Land for Sale, 7900 N Federal Highway, Boca Raton, Florida 33487
- MLS#RX-11139219
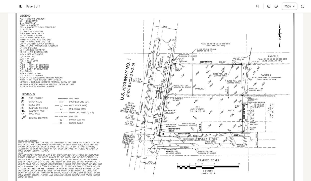
6,394 m² (68,825 ft²)
Listed By Waterfront & Estate Properties
The Land for Sale located at 7900 N Federal Highway, Boca Raton, Florida 33487 is currently for sale. 7900 N Federal Highway, Boca Raton, Florida 33487 is listed for $4,125,000.
Date Updated : Nov 10, 2025
Svetlana Paulson
Realty 7 LLC
Property features
Property
- Location: Ocean AccessWaterfrontSubdivisionIn The City
Lot/Land
- Land/Lot size:
6,394 m² (68,825 ft²) - Lot description: Cleared
- Soil type: Sandy
Water and Boating
- Water: Intra Coastal CanalRip Rap
- Boating: No Fixed Bridge
View
- Features: Canal View
Utilities
- Other utilities: ElectricPublic Sewer
Description
EXCEPTIONAL DEVELOPMENT OPPORTUNITY AWAITS WITH THIS RARE WATERFRONT PARCEL. CURRENTLY ZONED LOW-DENSITY RESIDENTIAL, THE PROPERTY OFFERS FLEXIBILITY FOR MEDIUM DENSITY HOWEVER, ADDITIONAL PAPERWORK NEEDS TO BE FILED AND APPROVED BY THE CITY OF BOCA. SOUTHEAST LOTS FEATURE UNOBSTRUCTED WATER VIEWS AND DIRECT DOCK ACCESS, CREATING AN IDEAL SETTING FOR LUXURY WATERFRONT LIVING.
Location
7900 N Federal Highway, Boca Raton, Florida 33487